Сфера дизайна
Участие в выставке: 2026 ПРОСТРАНСТВО ИДЕЙ
Номинация: кухня

Описание проекта

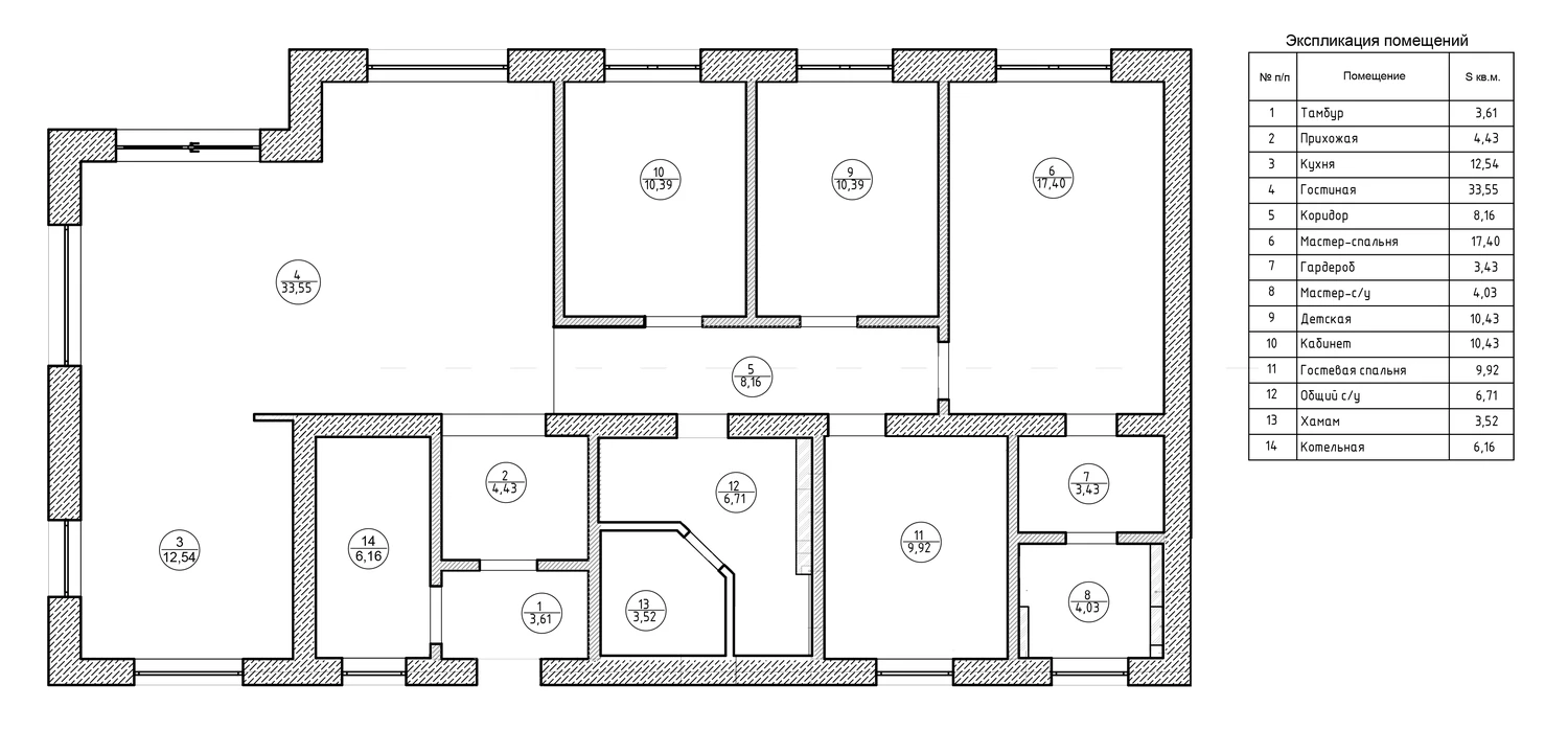
Минималистичный интерьер дома общей площадью 134 кв. м.

Планировка дома была согласована еще до начала проектирования, мы лишь откорректировали некоторые размеры и заменили помещение сауны в гостевом санузле на хамам. Длинный коридор в планировке можно считать достоинством, он позволяет отделить приватную часть дома от общей.

При проектировании важно было объединить вид из панорамных окон с внутренним наполнением интерьера. Отделка стен максимально простая и не перегруженная деталями, мы сыграли на чистых, как белый лист, стенах, дополнив их и «согрев» интерьер натуральными оттенками дерева в напольном покрытии и мебели.

На установке печи настоял заказчик, ему было важно создать очаг в доме, и печь действительно вписалась очень душевно. Можно сказать, что проект создавался в тандеме с заказчиками, это очень важный момент для дизайнера.

Большую роль в интерьере играет освещение, позволяющее за счет разных источников света и разной световой температуры создать нужную расслабляющую обстановку, которая так важна в загородном доме. А идеальное сочетание четкого минимализма и технологичности с кустарными рукотворными вещами позволило создать уют и внести жизнь в интерьер.

Войдите в систему, чтобы участвовать в голосовании
Рейтинг: 4.4

Комментарии

Всего: 0