Сфера дизайна
Участие в выставке: 2020 ДВИЖЕНИЕ КРАСОТЫ
Номинация: квартира до 80 кв.м

Описание проекта

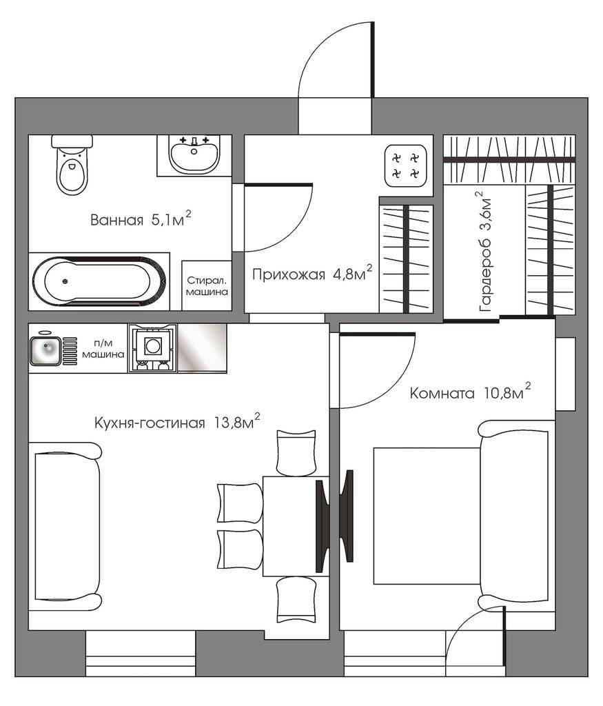
Необычным в этом заказе стало то, что данная квартира не используется для постоянного проживания. Хозяева приезжают в нее на несколько недель в год, чтобы навестить родственников т.к. живут в другом городе. Отсюда основное пожелание к разработке - сделать ремонт из максимально приемлемых по цене отделочных материалов и мебели.

На момент покупки заказчиками этой квартиры предыдущими владельцами было сделана перепланировка объединившая пространство кухни и комнаты в единое, но так как у новых хозяев двое детей такой вариант квартиры-студии им не подошел. Необходимо было сделать 2 изолированные комнаты со спальным местом чтобы дети и родители спали раздельно.

Войдите в систему, чтобы участвовать в голосовании
Рейтинг: 5.0

Комментарии

Всего: 0