Сфера дизайна
Участие в выставке: 2024 ЭСТЕТИКА
Номинация: помещение сферы услуг

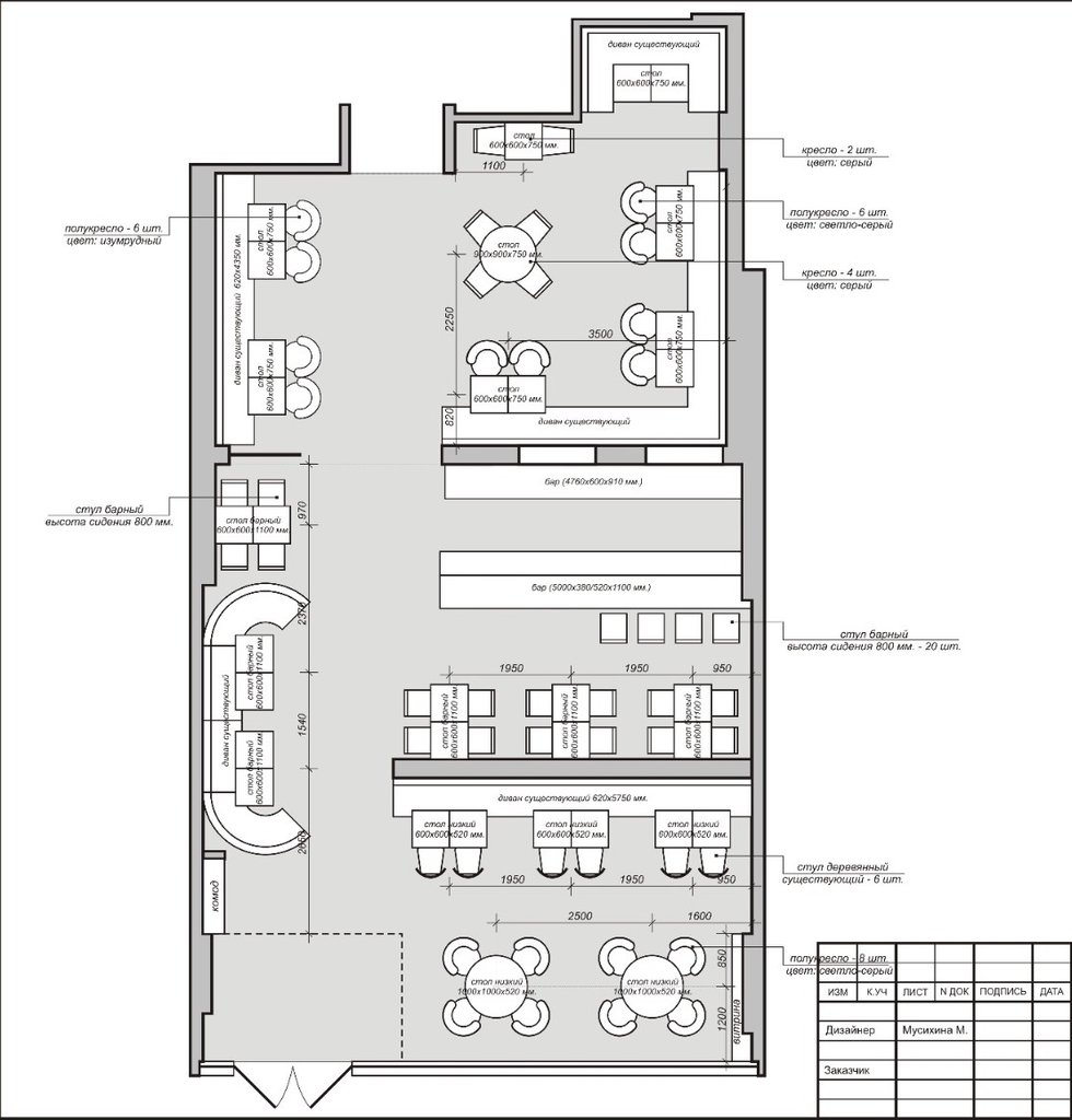
Описание проекта

Ресторан CHAYOTE в Лондоне.
Мексиканская, перуанская и испанская кухня.

Площадь помещений -129,5 м2
Проект реализован в 2023 году
Шеф-повар Барански назван Forbes одним из лучших поваров мира. Работал в испанском мишленовском ресторане.

Войдите в систему, чтобы участвовать в голосовании
Рейтинг: 5.0

Комментарии

Всего: 0