Сфера дизайна
Автор проекта: дизайнер ИРИНА КИГЕЛЬ
Участие в выставке: 2026 ПРОСТРАНСТВО ИДЕЙ
Победа в номинации: помещение сферы услуг, 2026

Описание проекта

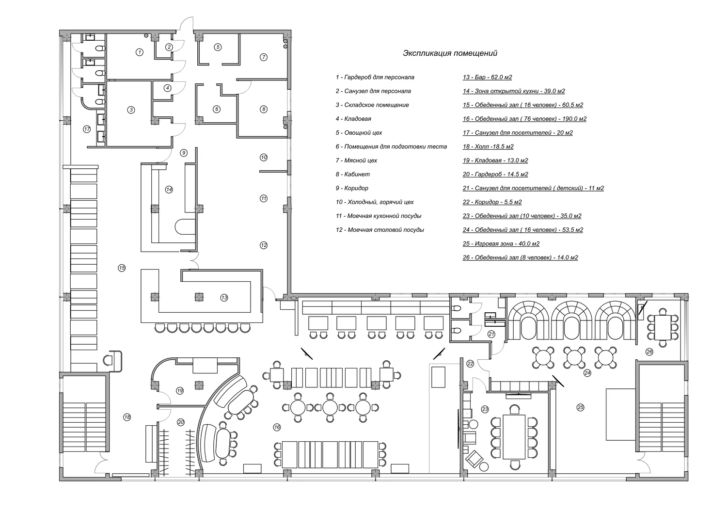
Ресторан "На Советской"

Общая площадь 770 м2

Площадь ресторана 576.5 м2

Название ресторана напрямую связано с его расположением — на улице Советской. Это поддерживает любовь заказчиков к советскому периоду нашей страны, но без буквального цитирования эпохи.

В интерьере сознательно отказались от прямой советской атрибутики и бутафории.

Интерьер ресторана “На Советской” отсылает к эстетике советской архитектуры, но без буквального цитирования. Основу пространства формируют прямые линии, простые объёмы и симметричные композиции. Нейтральный бело‑серый фон подчеркнут акцентами красного, зелёного и чёрного — отсылкой к авангарду.

В отделке использованы натуральные материалы, характерные для советского модернизма: гипсовые декоративные элементы, шпонированные панели, натуральный металл. Бетонные блоки напоминают о позднем советском периоде. Советская классика считывается в витражах, крупных каскадных люстрах и плафонах‑шарах.

Все эти мотивы переосмыслены в современном ключе и формируют атмосферу уважения к истории без прямых цитат и стилизации “под ретро”.

Ресторан семейный, поэтому здесь предусмотрен просторный детский зал с отдельной детской VIP‑комнатой, где одинаково комфортно и детям, и взрослым: это полноценное ресторанное пространство, а не детский центр. В санузлах организованы пеленальный столик и низкая детская раковина, чтобы гостям любого возраста было удобно.

Атмосфера детского зала погружает в мир воображения и романтики путешествий — волшебный мост через реку, самолёт в облаках, домик на дереве и непроходимые джунгли.

Детская VIP‑комната «Облачный замок» — идея родилась от выражения «строить облачные замки» — так говорят о человеке, который много мечтает и загадывает желания, что как раз необходимо в детский день рождения.

Работу над проектом мы начали на завершающем этапе строительства здания, поэтому успели реализовать дополнительный вход на кухню, вывести в нужных местах все необходимые коммуникации, а также с нуля спроектировать планировку под реальные сценарии работы ресторана и комфорт гостей.

Во всем проекте особое внимание уделено акустике: изначально помещения «звенели» из‑за железобетонных конструкций и панорамного остекления. Проблему решили с помощью шумопоглощающих материалов и особенно при помощи гипсового декора и потолочных акустических панелей, которые одновременно работают, как декоративный элемент и скрывают воздуховоды. Теперь во всех залах комфортный звук с коротким эхом: зал с открытой кухней не слышен в обеденном банкетном зале, на площадке могут выступать группы с живым звуком, в банкетном и VIP‑зале установлены профессиональные системы караоке, а в детском зале параллельно проходят мероприятия без взаимных помех. В детских кабинках светильники тоже закреплены  на акустических панелях, чтобы большие компании внутри кабинок не мешали друг другу.

 

 

Войдите в систему, чтобы участвовать в голосовании
Рейтинг: 3.9

Комментарии

Всего: 0