Сфера дизайна
Найти
Выставки
Выставки
2026
2025
2024
2023
2022
2021
2020
2019
2018
2017
2016
2015
2014
2013
2012
2011
2010
2009
2008
Участники
Работы
Победители
Жюри
Партнеры
Статьи
Войти
ЭМОЦИОНАЛЬНОЕ РАВНОВЕСИЕ
квартира до 80 кв.м
назад
Автор проекта:
дизайнер АННА ГЛУСКЕР
Участие в выставке:
2021 ДОМ – ЭТО СОСТОЯНИЕ ДУШИ
Номинация:
квартира до 80 кв.м
Описание проекта
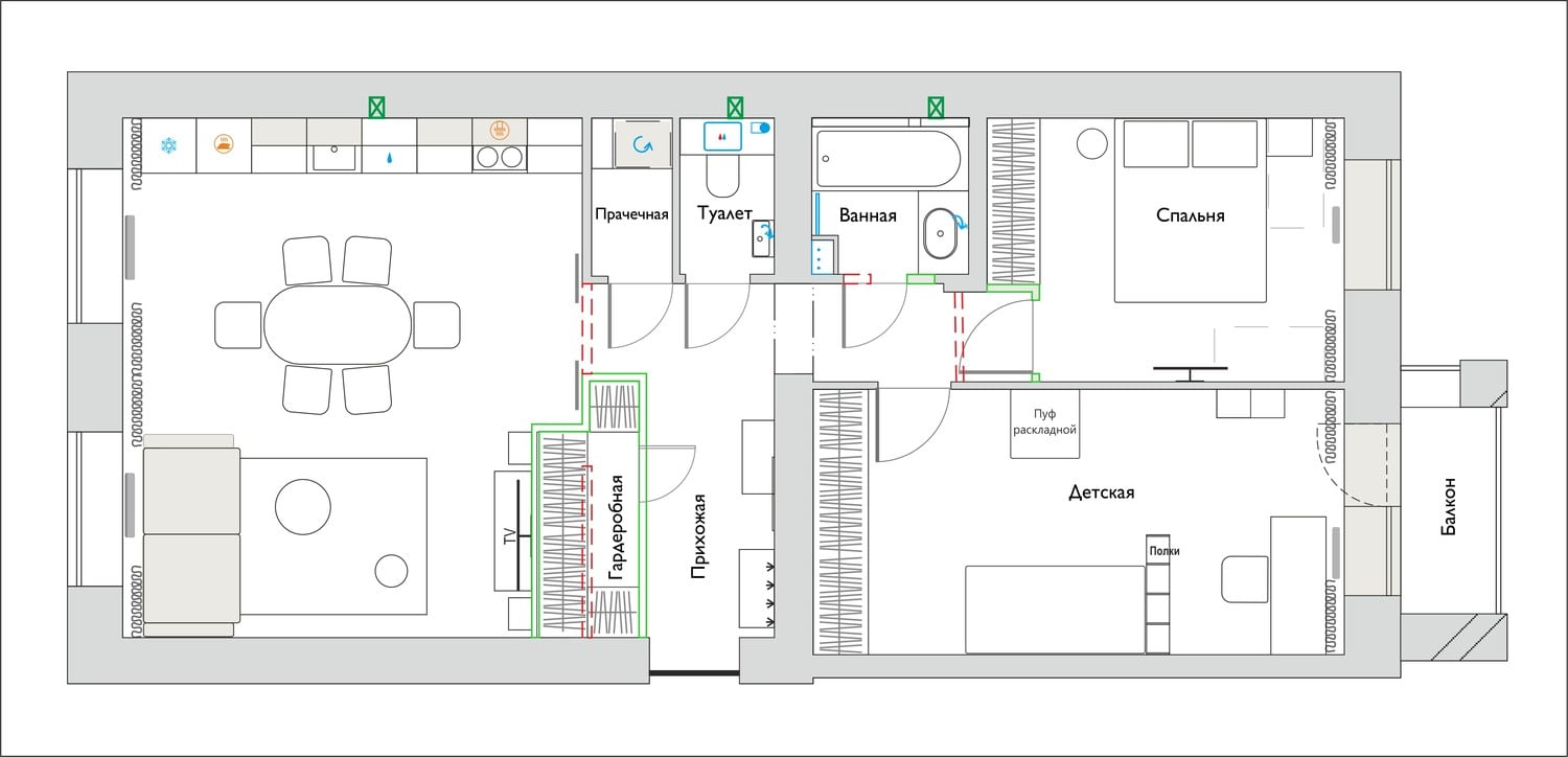
Квартира 75 кв м
Фотограф Иван Благушин
Войдите в систему, чтобы участвовать в голосовании
Рейтинг:
4.5
Комментарии
Всего:
0