Сфера дизайна
Участие в выставке: 2026 ПРОСТРАНСТВО ИДЕЙ
Номинация: аквадизайн

Описание проекта

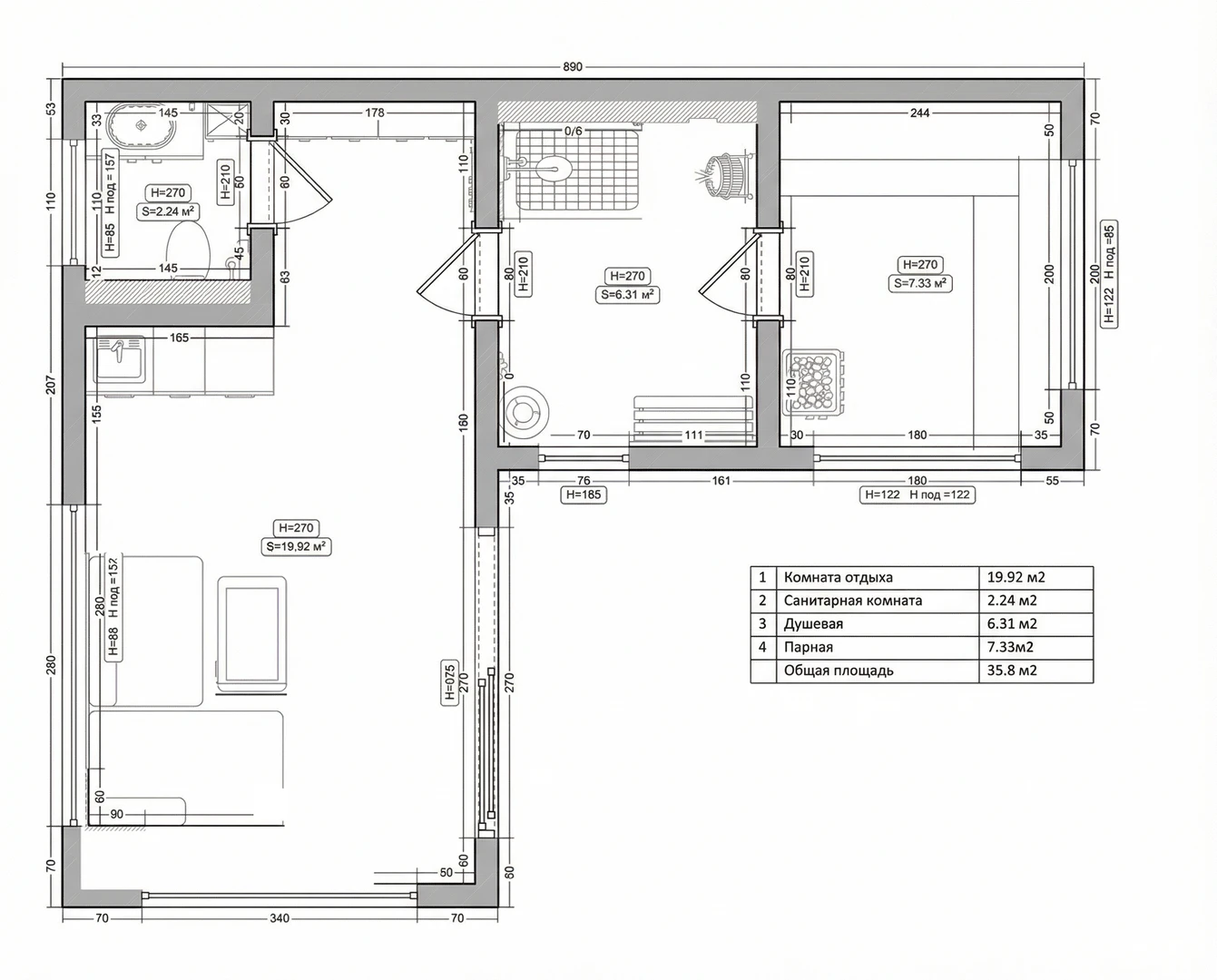
Банный комплекс (36 м²) — органичное продолжение архитектурного ансамбля домовладения. Его связывает с домом АГАТ единая терраса с летней столовой.

Архитектура
Комплекс вписан в угол участка. Ключевые черты:

  • панорамные окна в пол;
  • единая стилистика с основным домом;
  • материал — клеёный брус.

Большие раздвижные окна наполняют пространство светом и визуально объединяют комплекс с домом.

Колористика
Основа палитры:

  • светлые молочные оттенки;
  • два тона серого;
  • акцентный терракотовый;
  • линейный чёрный (в фурнитуре и ритме).

Нейтральная гамма сохраняет целостность образа при любом освещении.

Пространство
При компактности площадь ощущается просторной. Декор и мебель сведены к минимуму — главный акцент на природном нарративе.

Сценарное решение
Пространство продумано по маршрутам восприятия:

  1. При входе — терракотовый диван.
  2. Взгляд переходит к кухне‑нише.
  3. Мозаичное панно ведёт к душевой.
  4. В санитарном блоке мозаика подчёркивает функцию зоны.
  5. В сауне минимум предметов — акцент на вид из окон.

Свет
Вечером окна комнаты отдыха автоматически закрываются. Гибкие сценарии освещения (регулировка яркости и цветовой температуры) создают атмосферу камерности и расслабления.

Банный комплекс (36 м²) — органичное продолжение архитектурного ансамбля домовладения. Его связывает с домом единая терраса с летней столовой.

Архитектура
Комплекс вписан в угол участка. Ключевые черты:

  • панорамные окна в пол;
  • единая стилистика с основным домом;
  • материал — клеёный брус.

Большие раздвижные окна наполняют пространство светом и визуально объединяют комплекс с домом.

Колористика
Основа палитры:

  • светлые молочные оттенки;
  • два тона серого;
  • акцентный терракотовый;
  • линейный чёрный (в фурнитуре и ритме).

Нейтральная гамма сохраняет целостность образа при любом освещении.

Пространство
При компактности площадь ощущается просторной. Декор и мебель сведены к минимуму — главный акцент на природном нарративе.

Сценарное решение
Пространство продумано по маршрутам восприятия:

  1. При входе — терракотовый диван.
  2. Взгляд переходит к кухне‑нише.
  3. Мозаичное панно ведёт к душевой.
  4. В санитарном блоке мозаика подчёркивает функцию зоны.
  5. В сауне минимум предметов — акцент на вид из окон.

Свет
Вечером окна комнаты отдыха автоматически закрываются. Гибкие сценарии освещения (регулировка яркости и цветовой температуры) создают атмосферу камерности и расслабления.

Фотограф Наталья Русских

Войдите в систему, чтобы участвовать в голосовании
Рейтинг: 2.3

Комментарии

Всего: 0