Сфера дизайна
Участие в выставке: 2020 ДВИЖЕНИЕ КРАСОТЫ
Номинация: жилое помещение (квартира от 80 кв.м, загородный дом, коттедж)

Описание проекта

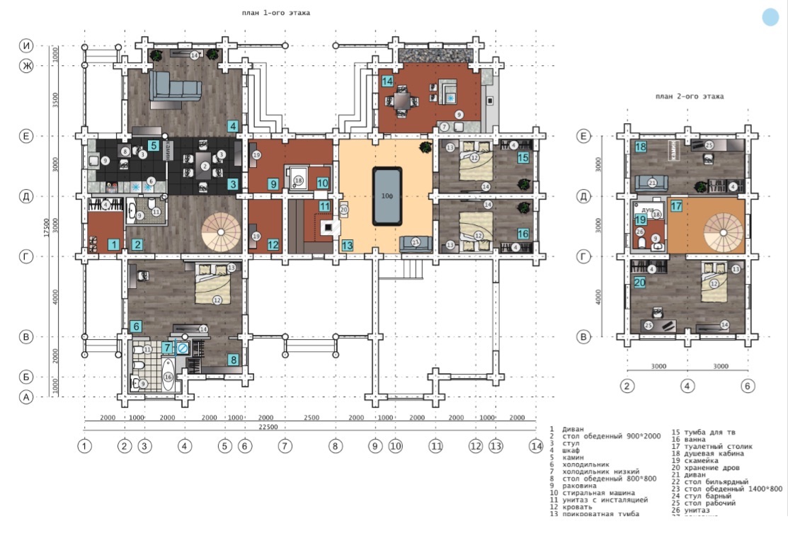
Дом разделен функционально на две части: зона проживания хозяев и зона отдыха с гостями. Эти две части объединяет банный комплекс посередине. В первой части расположены гостиная и рабочая кухня, столовая зона, спальня родителей со своим санузлом и гардеробной.
Потрясающий двухсторонний камин создает настроение и в столовой зоне, и на кухне рядом с малой обеденной зоной. Черная лестница выполняет не только утилитарную функцию, но также является графичным декором этого помещения. Черный цвет так же представлен в фасадах кухни.

 

Войдите в систему, чтобы участвовать в голосовании
Рейтинг: 4.5

Комментарии

Всего: 0